площадью 16,60 м2, по цене 1248000 по адресу Каменноостровский проспект - 42Б литера А

Цена 1 248 000 р.
Район Петроградский
Адрес Каменноостровский проспект, 42Б литера А
Площадь помещения 16,6 м2
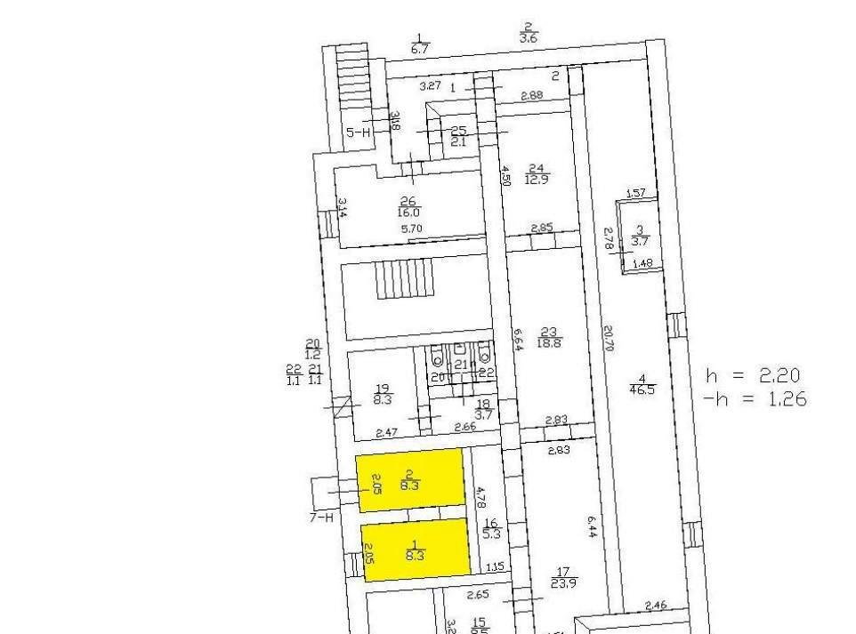
Код лота: 62C46C9-4001-7416-1. Реализуется на торгах. Продается нежилое помещение свободного назначения в Петроградском районе Санкт-Петербурга. Помещение расположено в пятиэтажном жилом доме 1955 года постройки. Окружение объекта составляет преимущественно жилая застройка. В ближайшем окружении располагаются школы, детские сады, магазины, кафе, рестораны, аптеки. Плотность застройки высокая. Парковка на улице и внутриквартальных проездах (платная) . Интенсивность транспортных и пешеходных потоков непосредственно возле объекта высокая. Транспортная доступность отличная. Ближайшая станция метро "Петроградская" расположена на расстоянии 240 м. Помещение находится в удовлетворительном состоянии. В настоящее время помещение не используется. Есть перепланировки. Площадь помещения: 16,6 кв. м Этаж: подвал, заглубление 1,26 м Окна: 1 во двор подвальное. Оконный проем в ч.п. 1 зашит Вход: 1 отдельный вход со двора (низкий) . Доступ во двор ограничен Высота: 2,20 м Коммуникации: Визуально выявлены элементы электроснабжения, водоснабжения (сантехнические и электросетевые приборы не выявлены) . Требуется заключение договоров с балансодержателями сетей! Возможное использование: помещение коммерческого использования - салон бытовых услуг. Помещение реализуется с торгов по приватизации по поручению Комитета по управлению городским имуществом Правительства Санкт-Петербурга. Торги проводятся на электронной площадке Lot-Online. Просьба звонить в рабочее время. Просмотр помещения осуществляется В ПЕРИОД ПРИЕМА ЗАЯВОК НА УЧАСТИЕ В ТОРГАХ И ТОЛЬКО В РАБОЧЕЕ ВРЕМЯ! Заявку на организацию осмотра необходимо подавать ЗАРАНЕЕ ! ! ! https: //catalog. lot-online. ru/index. php?dispatch=products. view&product_id=1306675
Объявление № 23358354
Дата подачи:
13 октября 2025 г. 3:09
Дата обновления:
12 октября 2025 г. 4:00
Просмотров 17 Хотите продать быстрее?

Продавец
Смирнова Вера
Показать номер телефона
Пожаловаться
Комментарии:
Добавить